Поиск на сайте Полная версия |
|
Все новостройки Новосибирска
Планировки квартир Королева, 19/1 (19 стр 1), ЖК Звезда
Королева, 19/1 (19 стр 1): о новостройке | о застройщике
Комфорт-класс 8 квартир на этаже в среднем Квартиры под самоотделку Высота потолка 2,72 м
Дом по улице Королева находится в Дзержинском районе. Сдача новостройки запланирована на 3 кв. 2027 года. Здание состоит из 25 этажей. Технология строительства: монолитный каркас, стены из кирпича. Квартиры в этом доме относятся к жилью комфорт-класса (подробнее о классах жилья).
На каждом этаже новостройки расположено около 8 квартир. Это средние показатели для городской недвижимости, вписывающиеся в правильную квартирографию и стандартную разбивку по площади квартир и количеству комнат. Еще о новостройке по ул.Королева, 19/1 (19 стр 1)
|
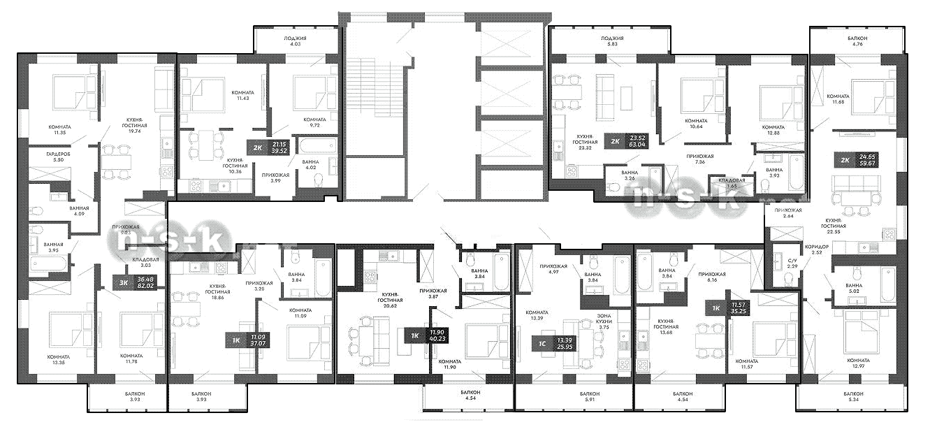
Общий план этажа

План типового этажа - секция 2 
План типового этажа - секция 1 Поиск новостройки
|
|
|
наверх Обратная связь, контакты
|