Поиск на сайте Полная версия |
|
Все новостройки Новосибирска
Планировки квартир Семьи Шамшиных, 2 стр, ЖК Юнити Центр (дом-бутик Unity Center)
Семьи Шамшиных, 2 стр: о новостройке | о застройщике
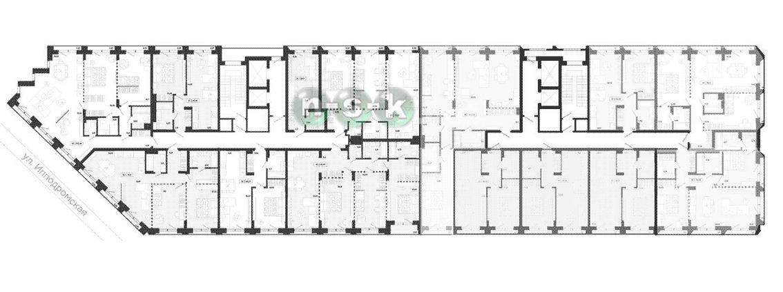
Бизнес-класс 7 квартир на этаже в среднем Квартиры под самоотделку
Дом по улице Семьи Шамшиных находится в Центральном районе. Сдача новостройки запланирована на 4 кв. 2026 года. Здание состоит из 13 этажей. Технология строительства: монолитный каркас, стены из кирпича. Дом отличается повышенной комфортностью, жилье относится к бизнес-классу (подробнее о классах жилья).
На каждом этаже новостройки расположено около 7 квартир. Это очень хорошие показатели для Новосибирска, свидетельствующие о комфортной площади квартир и ориентации на постоянный состав жителей дома. Такая поэтажная разбивка соблюдает правильный баланс: многокомнатные жилые помещения представлены в необходимом количестве, нет перекоса в сторону 1-комнатных квартир и студий. Еще о новостройке по ул.Семьи Шамшиных, 2 стр
|
Общий план этажа

План типового этажа
Поиск новостройки
|
|
|
наверх Обратная связь, контакты
|