Поиск на сайте   Карта сайта   Полная версия

3-комн.квартиры | 3-комн.квартиры в Кир районе | Квартиры по ул.Урманова

 

3-комнатная квартира Урманова, д.20

3-комнатная квартира  Урманова, д.20, продажа - фото 1

Цена 5300 тыс.руб
Снижение цены(цена снизилась)

 Стоимость кв.м: 64 т.р.

Чистая продажа

1 этаж 3-этажного кирпичного дома
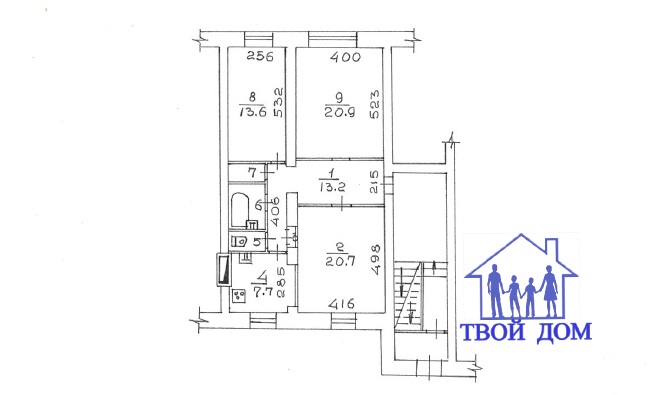
82/55/8 кв.м (площадь общая/жил/кухня)

Кировский район ул.Урманова, д.20

3-комн.квартира
полногабаритная квартира
комнаты изолированные
санузел раздельный
без балкона
телефон возможен

Комментарий

Внимание ХОРОШИЙ Торг! Звоните!
Дом после капитального ремонта.
Произведен ремонт всех коммуникаций - систем электроснабжения, водоотведения, водоснабжения, теплоснабжения, подвальных помещений.
Отремонтирован фасад и кровля + отмостка.
Заменены все стояки в квартирах, установлено видеонаблюдение.

В 2015 году во всей квартире произведен капитальный ремонт пола (пол полностью вскрывали, заливали бетоном + заменили лаги и доски).

Удачная транспортная развязка, остановка рядом (1 минута от дома),
до метро Маркса прямой автобус (20 минут),
на правый берег через Бугринский мост - 10 минут.
700 метров до реки Обь, летом можно пешком ходить на прогулку, купаться, рыбачить!

Просторная, очень теплая квартира (проверено морозами).
Большие окна обеспечивают хорошее естественного освещения.
Планировка на две стороны.
Комнаты правильной формы 21/21/13 кв.м., потолки 3 м.
Имеется вместительная кладовая + дополнительное место для хранения - шкаф - ниша.
Дом кирпичный, на площадке три квартиры.
Много парковочных мест.
Во дворе оборудована современная детская площадка.
Оставим кухонный гарнитур, угловой шкаф в детской комнате, шкаф купе в прихожей.

Просмотры по договоренности.
Добро пожаловать!

Контакты

Частный риэлтор

89529466612

Татьяна

3 объявлений пользователя
(продажа жилой недвижимости)


Номер объявления в базе НСК.net №998004
опубликовано 08.10.2025
обновлено 20.03.2026
просмотров: 189


Информацию о необходимых документах можно получить по указанным выше телефонам
Сообщить об ошибке в объявлении / пожаловаться


Динамика изменения цены этого объекта


Дата Цена, т. р. В тыс руб В %
20.03.265 300 Снижение-200-3.8%
03.11.255 500 Снижение-200-3.6%
15.10.255 700 Снижение-300-5.3%
08.10.256 000     --

 Информация о доме Урманова 20 (год постройки, процент износа)


 Квартиры в Кир районе стоимостью от 5 до 6 млн. рублей


 Кировский район: дополнительная информация о районе


наверх

 Обратная связь, контакты