Поиск на сайте Полная версия |
|
Все новостройки Новосибирска
Планировки квартир Даргомыжского, 8д (Светлановская, 46/1 стр), ЖК Ворошилов (VOROSHILOV)
Даргомыжского, 8д (Светлановская, 46/1 стр): о новостройке | фотоотчет | о застройщике
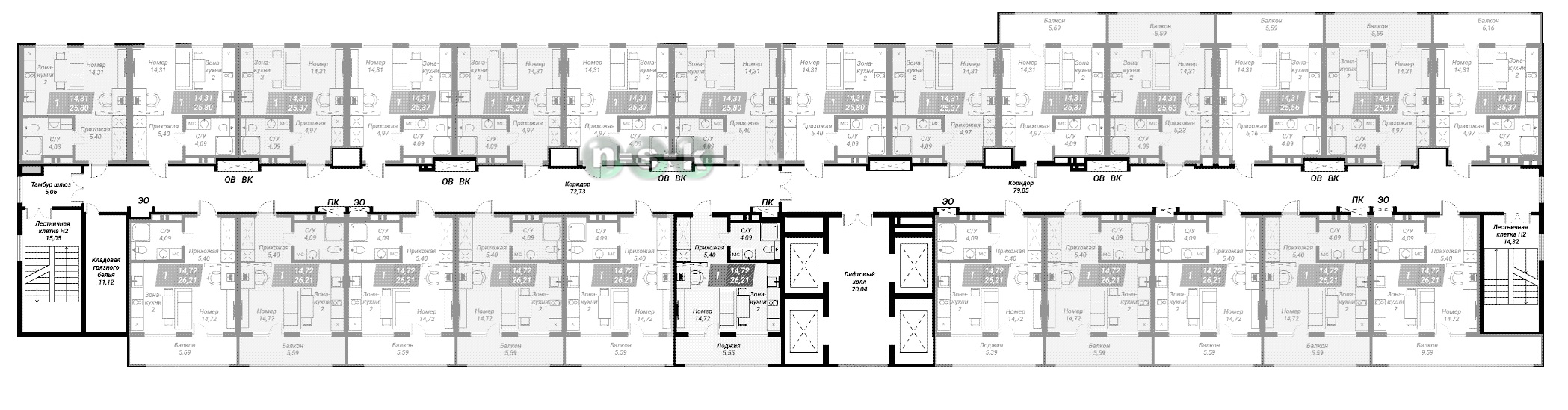
Апартаменты 25 квартир на этаже в среднем Квартиры под самоотделку
Дом по улице Даргомыжского находится в Заельцовском районе. Сдача новостройки запланирована на 3 кв. 2026 года. Здание состоит из 23 этажей. Технология строительства: монолитный каркас, стены из кирпича. В здании представлены апартаменты — так называемые гостиничные номера, особый вид недвижимости. В апартаментах можно жить, сдавать в аренду, но нельзя оформить постоянную регистрацию.
На каждом этаже новостройки расположено около 25 квартир. В здании преобладает жилье небольшой площади: студии и 1-комнатные квартиры. Для апарт-отелей - это стандартная ситуация. Следует учитывать, что такая недвижимость считается коммерческой, состав жильцов в доме часто меняется. Много номеров покупается инвесторами, которые потом сдают их в аренду, чаще краткосрочную. Кроме того, на такую недвижимость не распространяются законы о тишине и прочие правила, регулирующие проживание в обычном жилом доме. Еще о новостройке по ул.Даргомыжского, 8д (Светлановская, 46/1 стр)
|
Общий план этажа

План типового этажа
Поиск новостройки
|
|
|
наверх Обратная связь, контакты
|